projet enfants rouges
Surface :
Environ 27 m2
Type de projet :
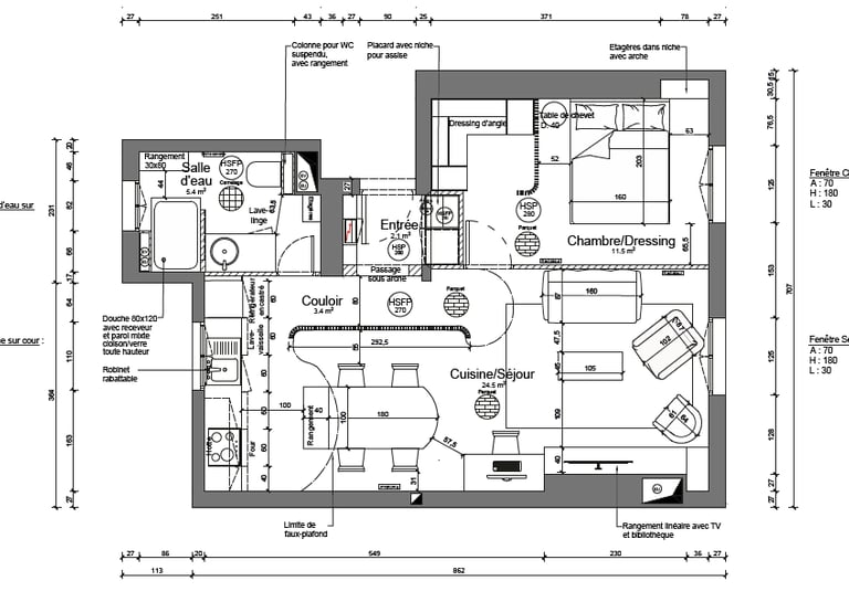
Agencement, aménagement et décoration d’un espace cuisine / séjour d’un appartement au 3ème étage - Paris (3e arrondissement), Ile-De-France.
Mission de design intérieur, d’aménagement et de décoration :
Ré-agencement de l’espace pour créer deux coins distincts mais non coupés visuellement.
Proposition d’un nouveau revêtement mural, d’un nouvel aménagement et d’éléments de décoration intérieure pour chaque zone.
Le projet en quelques mots :
Les clients souhaitaient réagencer et réaménager leur pièce pour créer :
- une cuisine avec de nombreux rangements et un ilôt permettant d’y prendre des repas,
- un séjour comprenant notamment un meuble sur mesure avec bibliothèque / bureau intégré / TV.
Appréciant le design des années 60 et en même temps le style scandinave, ils ont validé la planche d’inspiration « scandi-sixties » que je leur ai proposée pour le mobilier et la décoration.
Le sol vinyle, qui était à changer, a été remplacé par un parquet chêne massif en point de Hongrie, choisi chez un fabricant de bois français. Les murs ont tous été repeints avec la peinture validée par les clients.
Pour aménager l’espace, le mobilier de réemploi a été favorisé lorsque cela était possible : fauteuil Togo, table basse, bureau et luminaires ont été sélectionnés d’occasion (réemploi ex-situ).
Pour les éléments neufs, des éléments durables et intemporels ont été validés par les clients.











